Listing provided courtesy of Christina Rabe of BHGRE Platinum Realty Group. Last updated . Listing information © 2025 Sandicor.
Asking Price: $395,000
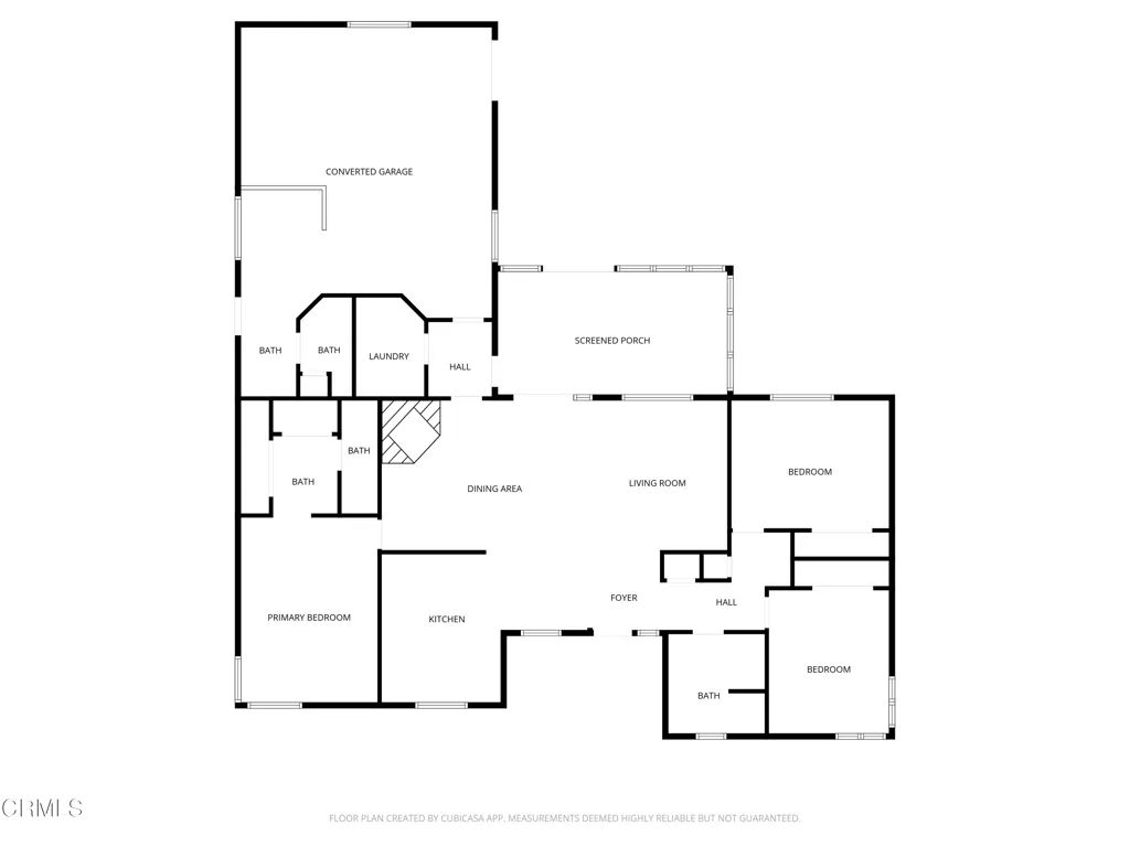
21101 Angel Street, Tehachapi CA 93561
Community:
This Residential property was built in 1982 and is priced at $395,000. Please see the additional details below.
Opportunity Knocks! Located in Golden Hills East, this spacious 3BD / 1.75BA home offers 1,779 SF with a desirable split-wing floorplan and a layout that invites creativity. The living area features a focal fireplace, creating a natural gathering space, while indoor laundry and a screened porch add everyday convenience.The garage has been converted into a bonus room with a half bath, offering flexible space for a home office, hobby room, business or guest area. Situated on a generous .61-acre corner lot, the property includes multiple outbuildings and a large shop with alley access ideal for projects, storage, or those who need room to work and create.This property is ready for transformation and presents an excellent opportunity for buyers looking to build sweat equity and customize a home to their vision. With its prime location, expansive lot, and versatile spaces, this is a chance to unlock incredible potential.






































